De Kampeerplaats met Uitzicht
van Camping Fontaine Vieille
In het kort
Geniet van onze staanplaatsen vlakbij het strand voor uw tent, camper of caravan, met een maximum van 6 personen.
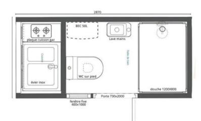
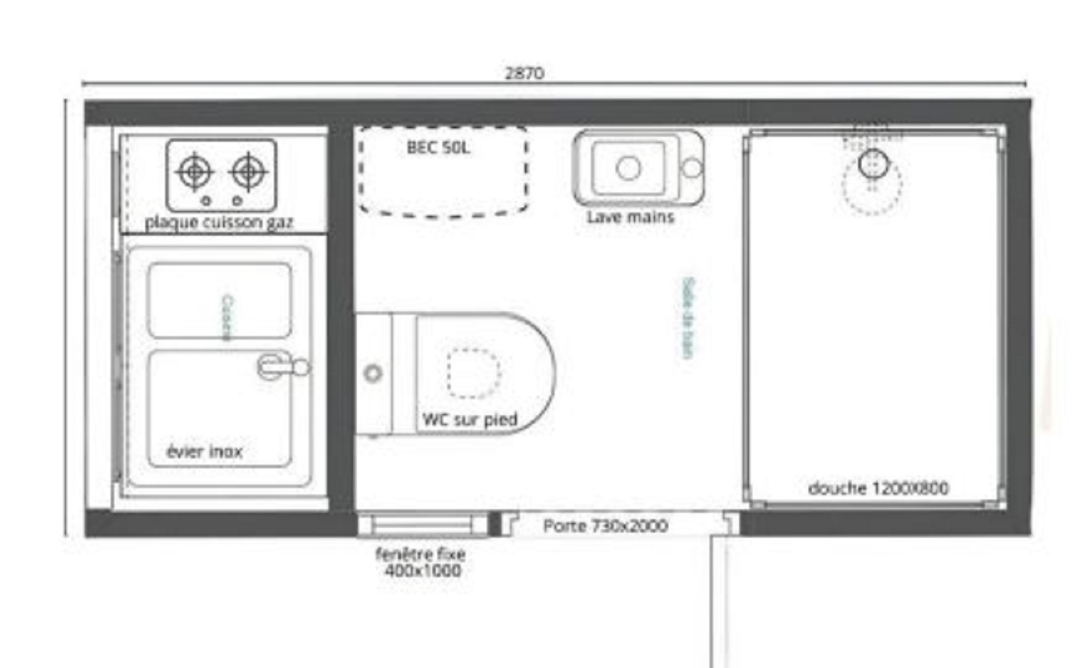
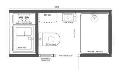
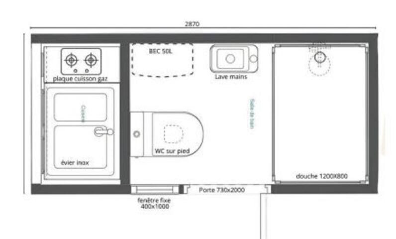
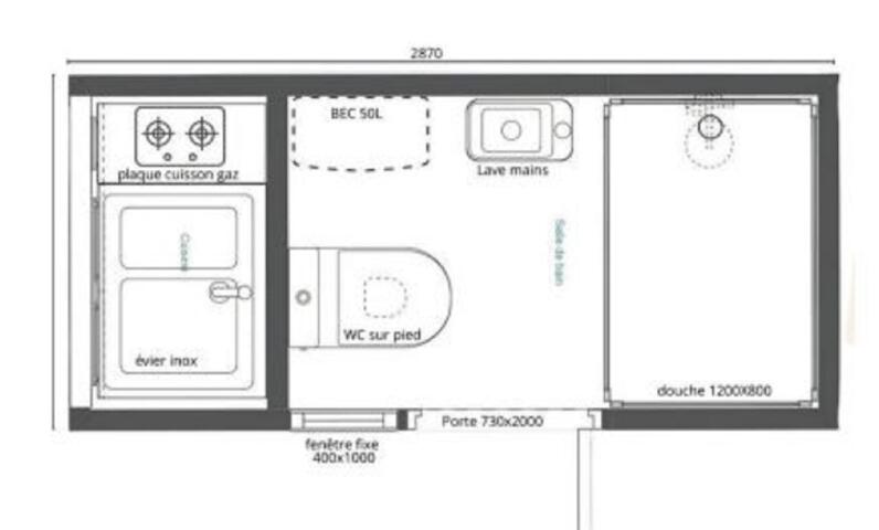
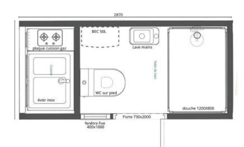
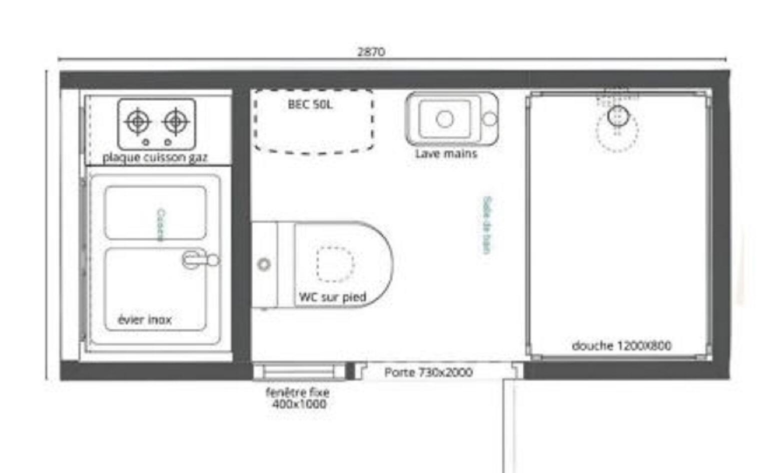
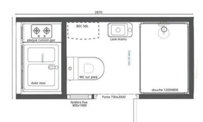
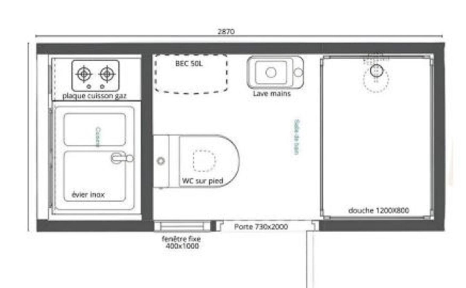
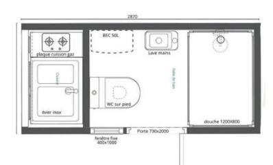
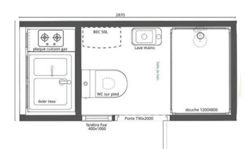
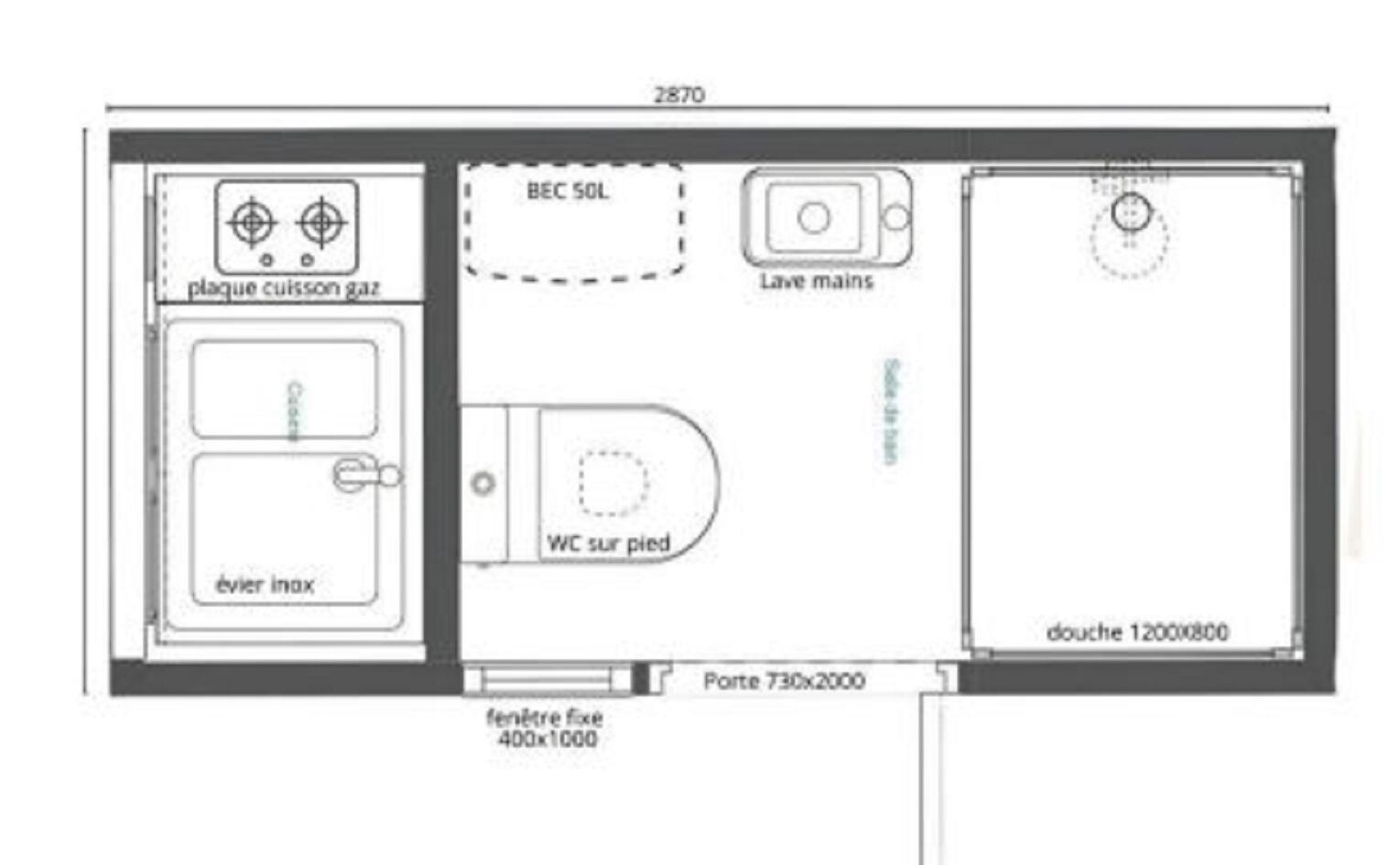
Uw staanplaats beschikt over een eigen badkamer, bestaande uit twee gedeeltes: binnen een verwarmde doucheruimte met douche, wastafel en toilet;
en buiten een keukenhoek met spoelbak, kookplaat en koelkast. Deze unit is afsluitbaar, zodat u uw persoonlijke spullen er veilig kunt achterlaten.
De staanplaats is voorzien van 10 ampère huishoudelijke elektriciteit (Europese of Franse standaard aansluiting).
Neem een Europese stekker en een verlengsnoer van minimaal 20 meter mee.
Let op: maximaal 2 huisdieren per staanplaats toegestaan (zie toeslagtarieven).
- Sanitaire voorzieningen in de buurt
- Elektrische aansluiting volgens Europese normen
- Koelkast huren
- Wifi
- Kluis
- Babykit (bedje, kinderstoel en badje) (los verkrijgbaar)
- 2de voertuig
Boek met een gerust hart!
We hebben aan alles gedacht:
Krijg de beste prijs
Gratis Annuleringsgarantie
Wenig zon?
Flexibele data