Der Stellplatz mit Aussicht
des Campingplatzes Fontaine Vieille
In Kürze
Genießen Sie unsere Stellplätze in Strandnähe für Ihr Zelt, Wohnmobil oder Ihren Wohnwagen (maximal 6 Personen).
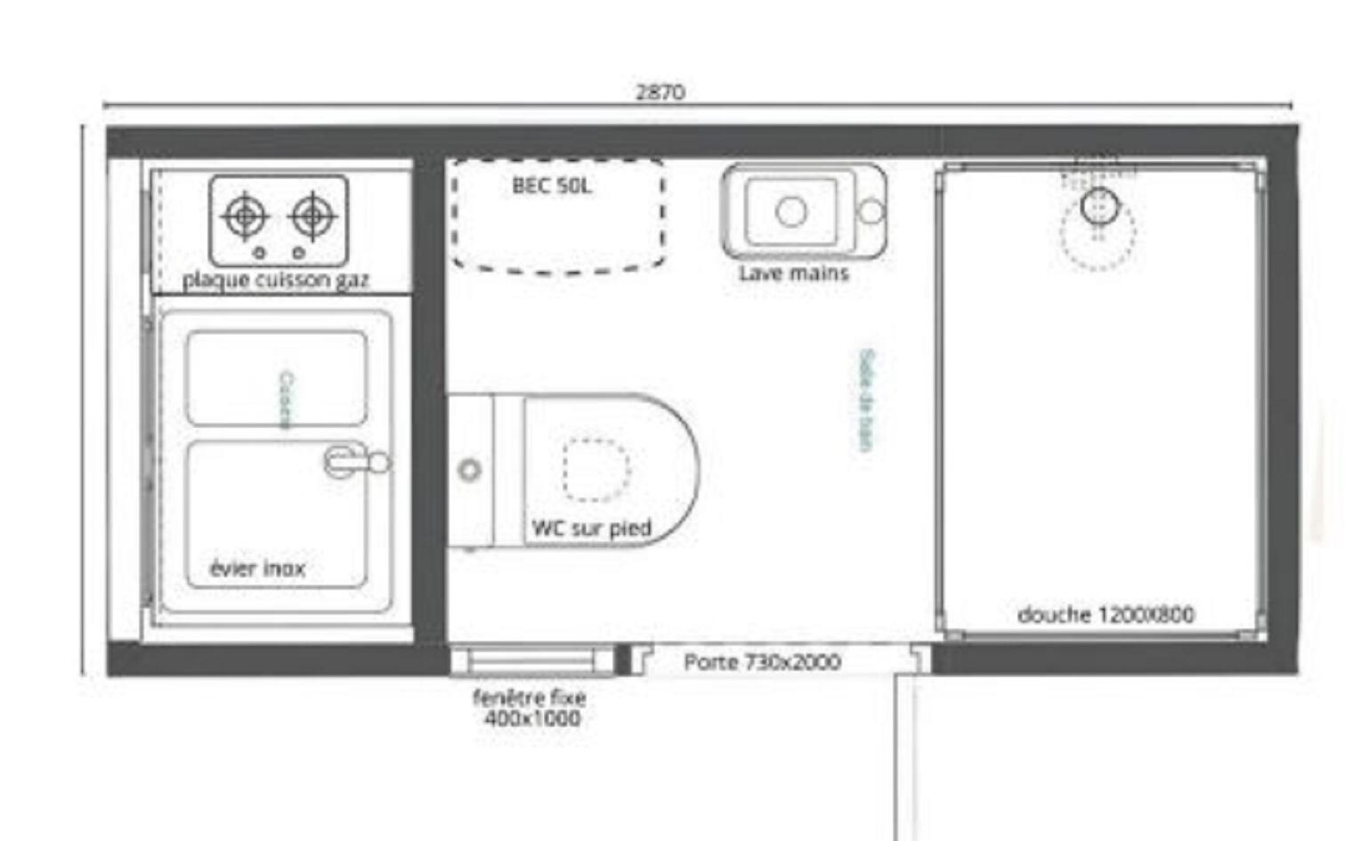
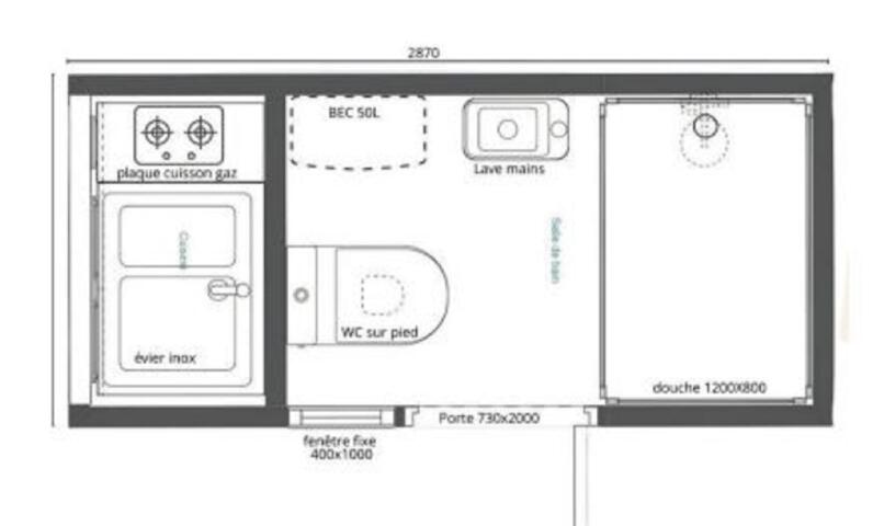
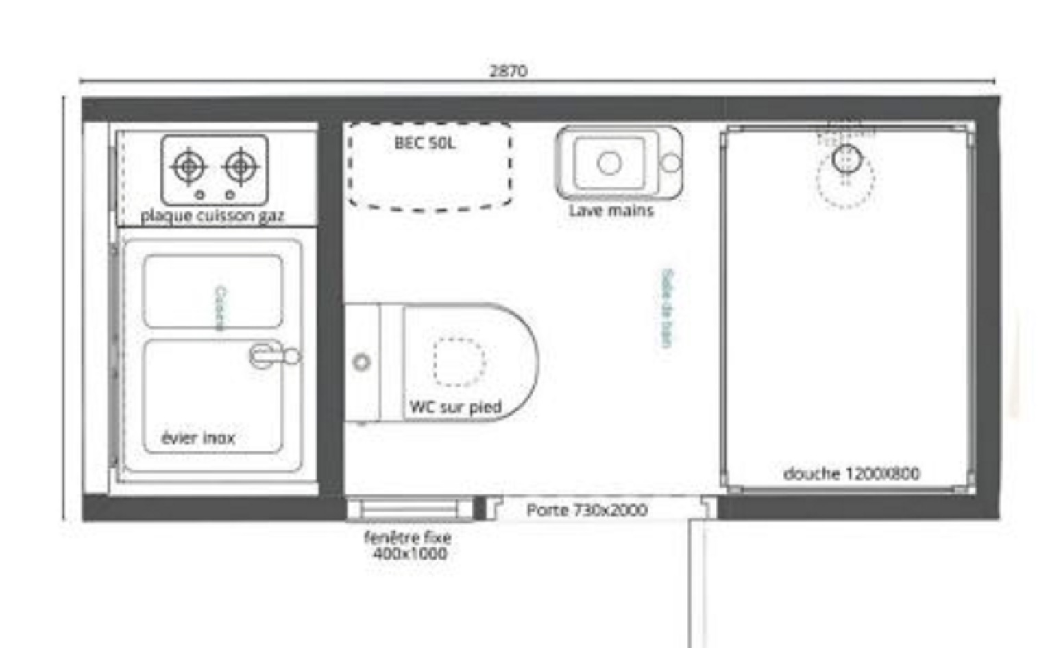
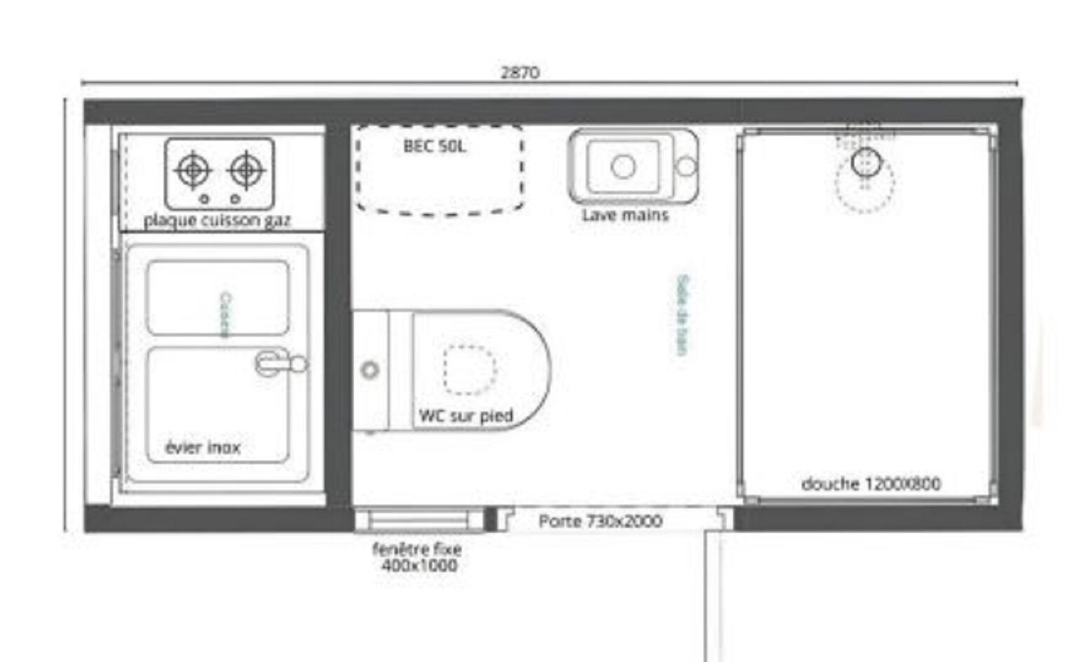
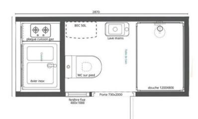
Ihr Stellplatz verfügt über einen privaten Sanitärbereich mit zwei Bereichen: innen ein beheiztes Duschbad mit Dusche, Waschbecken und WC;
außen eine Küchenzeile mit Spüle, Kochfeld und Kühlschrank. Die Küche ist abschließbar, sodass Sie Ihre persönlichen Gegenstände dort lassen können.
Der Stellplatz ist mit einem 10-Ampere-Haushaltsstromanschluss (europäischer oder französischer Standard) ausgestattet.
Bitte bringen Sie einen europäischen Stecker und ein mindestens 20 m langes Verlängerungskabel mit.
Hinweis: 2 Haustiere pro Stellplatz erlaubt (siehe Aufpreis).
- Sanitäre Einrichtungen in der Nähe
- Elektrischer Anschluss nach europäischen Standards
- Kühlschrank mieten
- Wifi
- Tresor
- Babyset (Kinderbett, Hochstuhl, Badewanne) (kann einzeln gebucht werden)
- 2. Fahrzeug
Buchen Sie mit ruhigem Gewissen!
Wir haben an alles gedacht:
Profitieren Sie vom besten Preis
Geschenkte Stornierungsgarantie
Wenig Sonne?
Flexible Termine